Gratis Lichtplan op maat!
MBL-lighting maakt voor u een vrijblijvend lichtplan op maat!
Voor alle ruimtes is uw lichtplan op maat geschikt. Hieronder bijvoorbeeld welke ruimtes wij een lichtplan op maat voor u kunnen maken.
-
Winkel
-
Magazijn
-
Woning
-
Praktijk ruimtes
-
Kantoor
Wensen? Zijn er bepaalde wensen waar u graag sfeer of goed licht nodig heeft? laat het ons weten dan houden wij daar uiteraard rekening mee.
Wat zien wij graag in uw tekening of plattegrond?
Uiteraard is de juiste maatvoering belangrijk Lengte x breedte en hoogte.
Schets de meubels, bureau's, stellingen, etc waar die komen te staan dit is belangrijk voor het licht.
Welk plafond heeft u?
Is het mogelijk om de verlichting inbouw te monteren? Of ziet u graag alles opbouw?
Wij zullen zowel als inbouw als opbouw meerdere mogelijkheden sturen.
Schakelen of dimmen van de verlichting en hoe u dit graag wilt zien?
Schakelen is aan / uit doormiddel van een schakelaar. Het dimmen van de verlichting doormiddel van wand dimmers of draadloos? Eventueel alles bedienen via Philips Hue app?
Stuur een mail met jou gegevens en tekening met de juiste maat voering en ontvang een vrijblijvend lichtplan op maat.



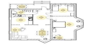
VOORBEELD LICHTBEREKENING
Vul hieronder uw gegevens in en ontvang een GRATIS lichtplan op maat!
MBL-LIGHTING l Bedrijvenweg 9a 2351BC Leiderdorp l Telefoon nummer: 071-7810033 l E-mail: info@MBL-lighting.nl